LOADING

JAKE SEALINE

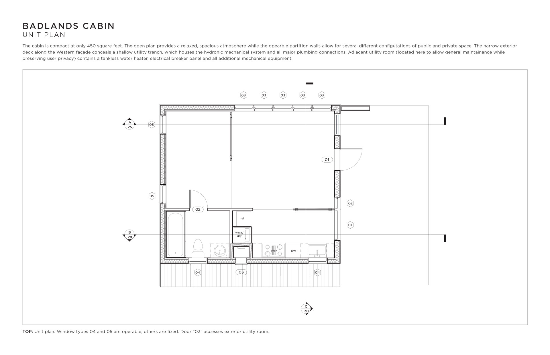
MOJAVE BADLANDS CABIN

I designed this cabin for an area of the Mojave desert known as The Devil’s Playground. There is no water, there is no shade, sandstorms are frequent, the days are hot and the nights are freezing. This cabin makes light of this forbidding climate using operable ventilation louvres, sunshading devices, and a two-way passive solar hydronic subfloor system that both heats and cools year-round.

PDF VIEW