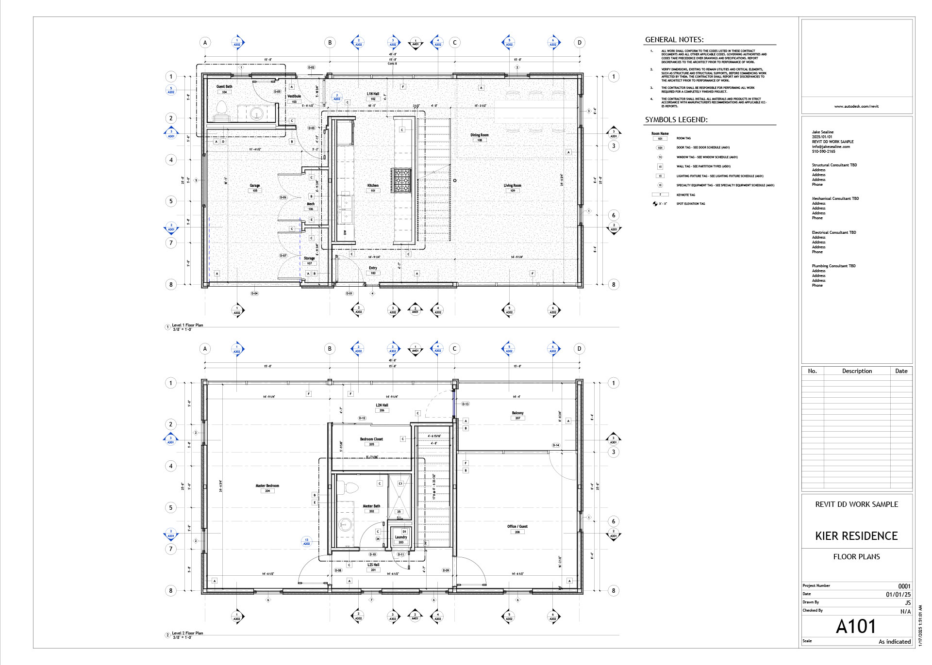
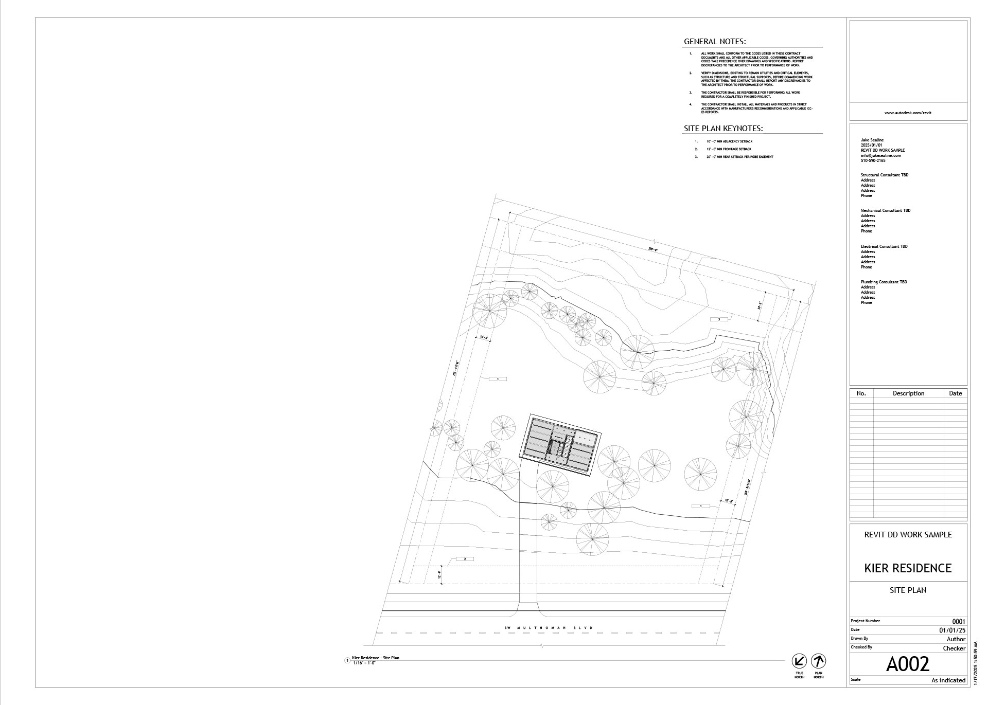
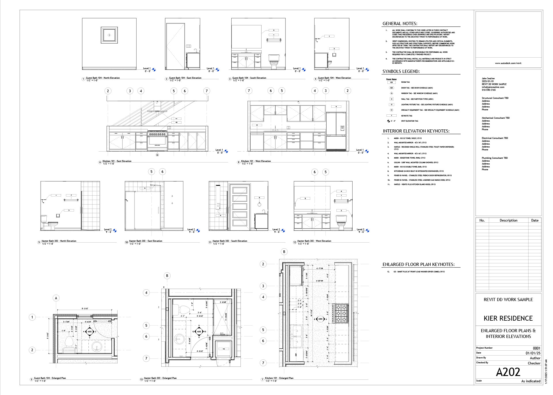
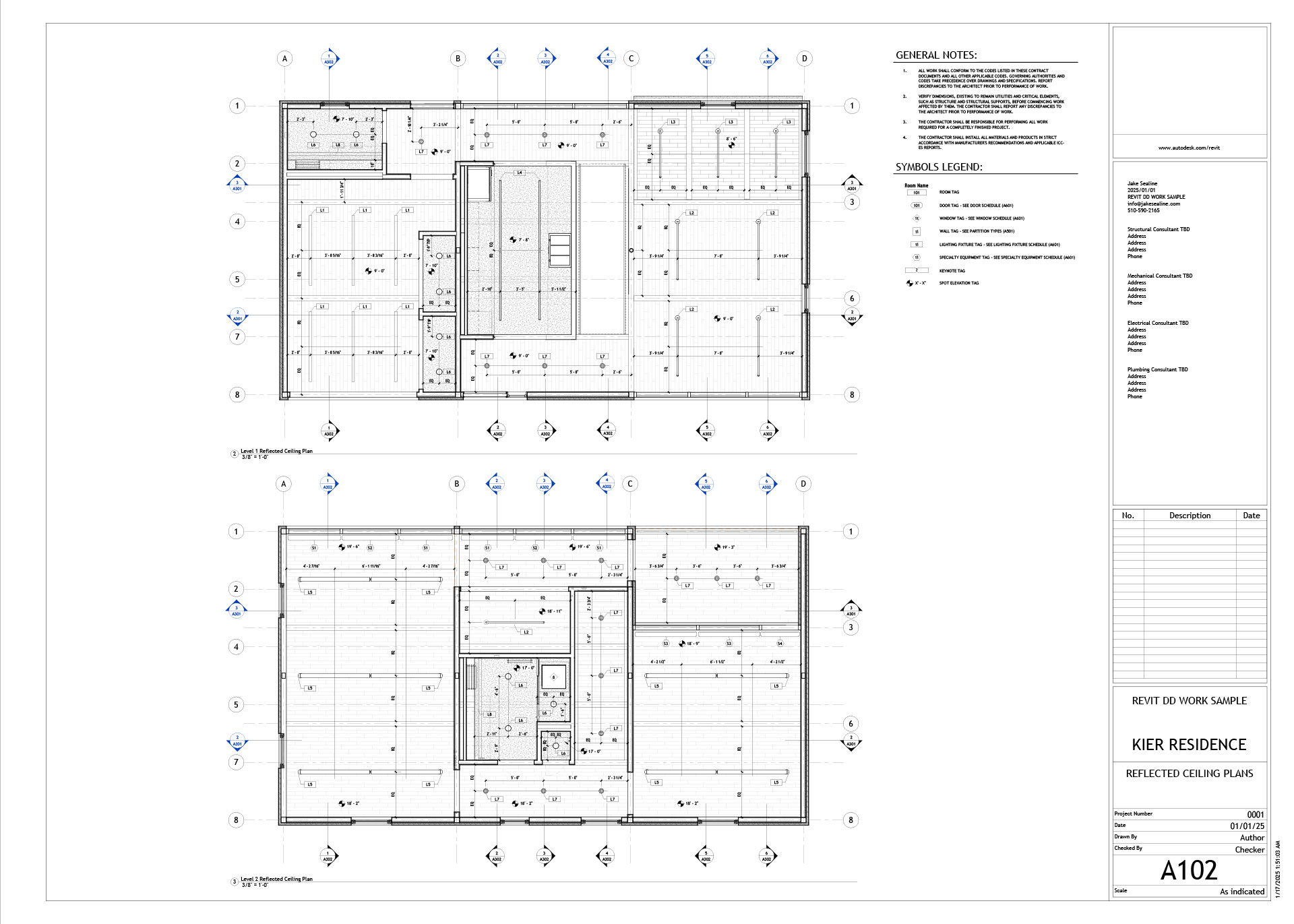
Kier Residence
The Kier Residence is a single family, 2-level heavy timber residence.
I designed it and put this set together as a Revit excercise.
LOADING
JAKE SEALINE
The Kier Residence is a single family, 2-level heavy timber residence.
I designed it and put this set together as a Revit excercise.