LOADING
JAKE SEALINE
WORK
ABOUT
CONTACT
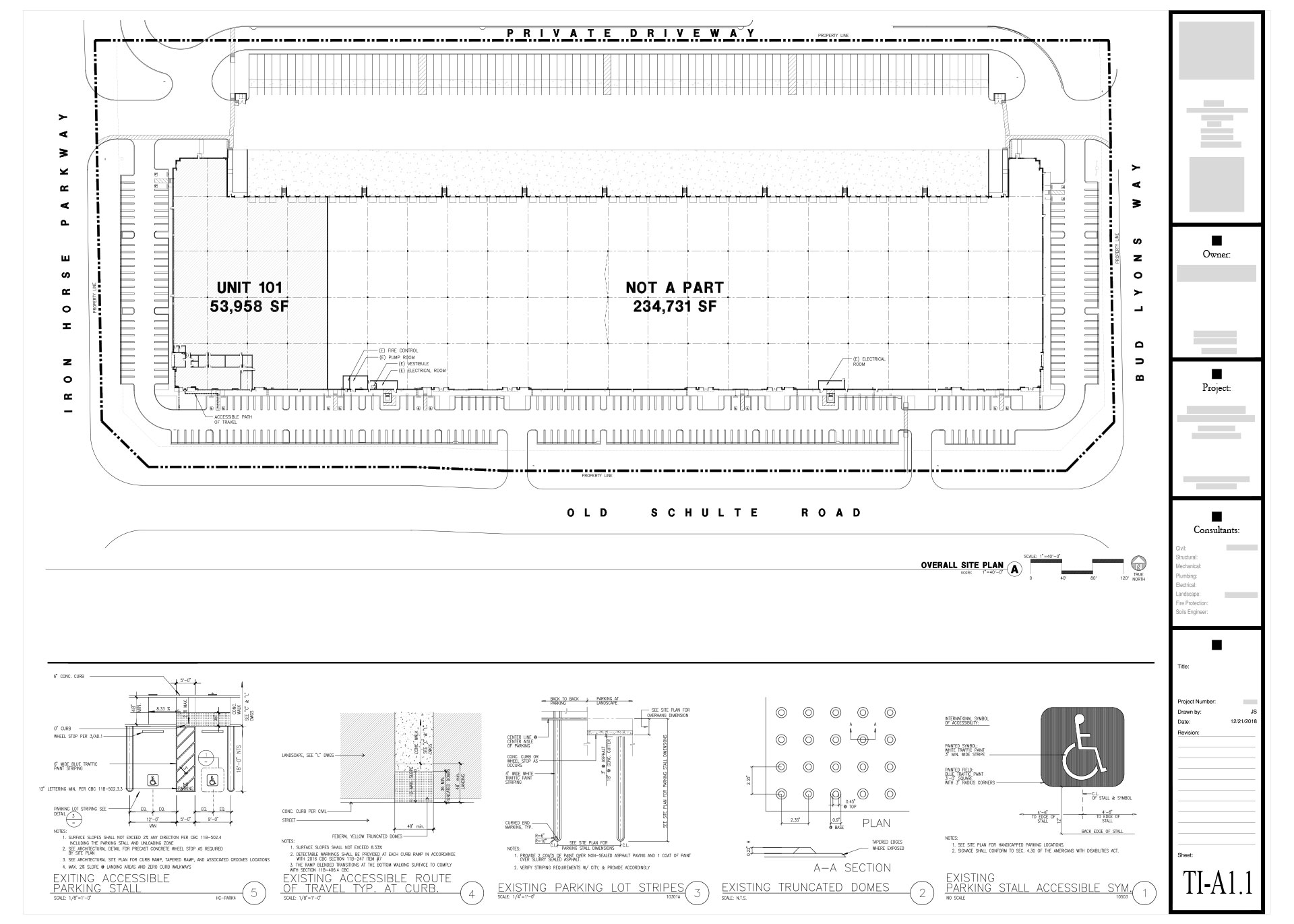
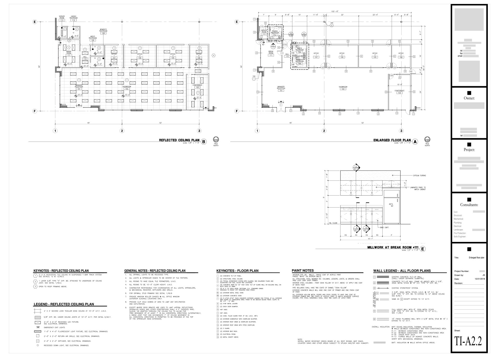
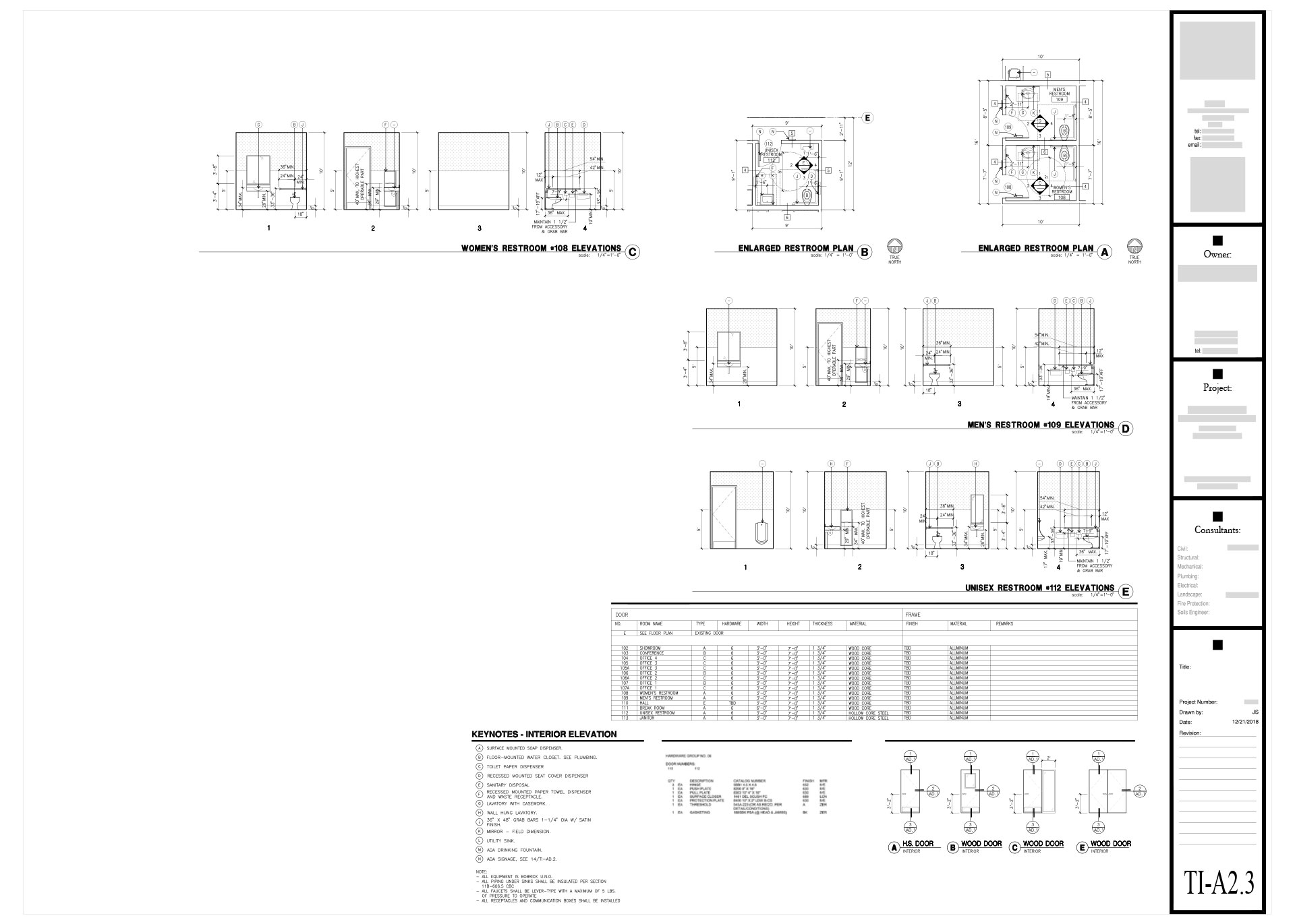
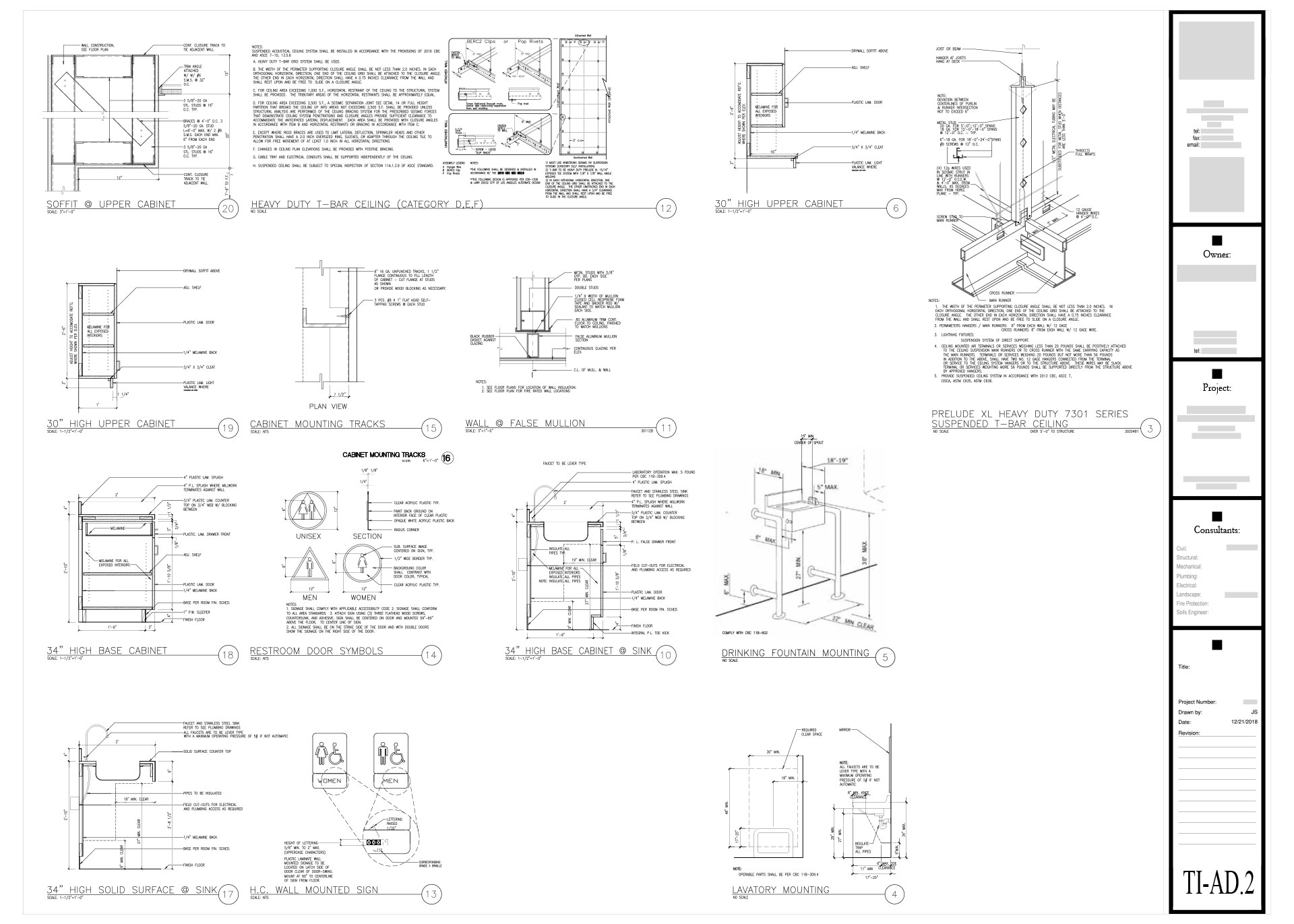
DRAFTING SAMPLE C
Tenant Improvement Project
PDF VIEW