LOADING
JAKE SEALINE
WORK
ABOUT
CONTACT
DRAFTING SAMPLE B
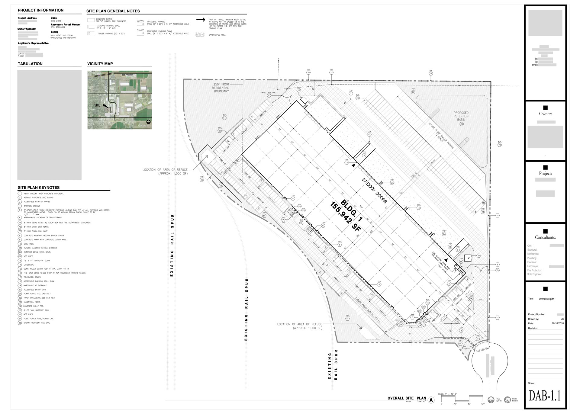
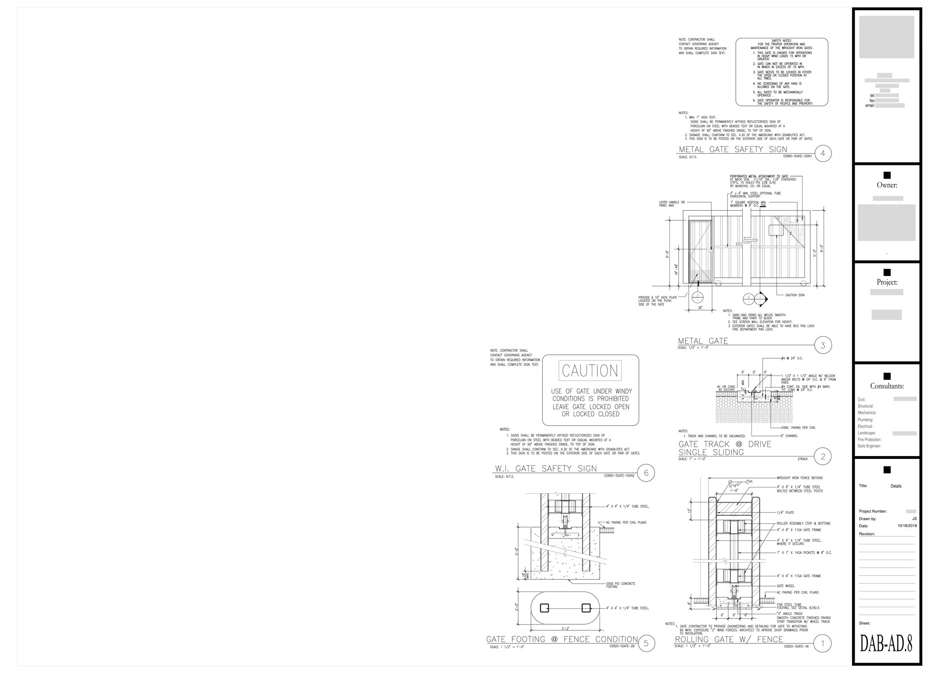
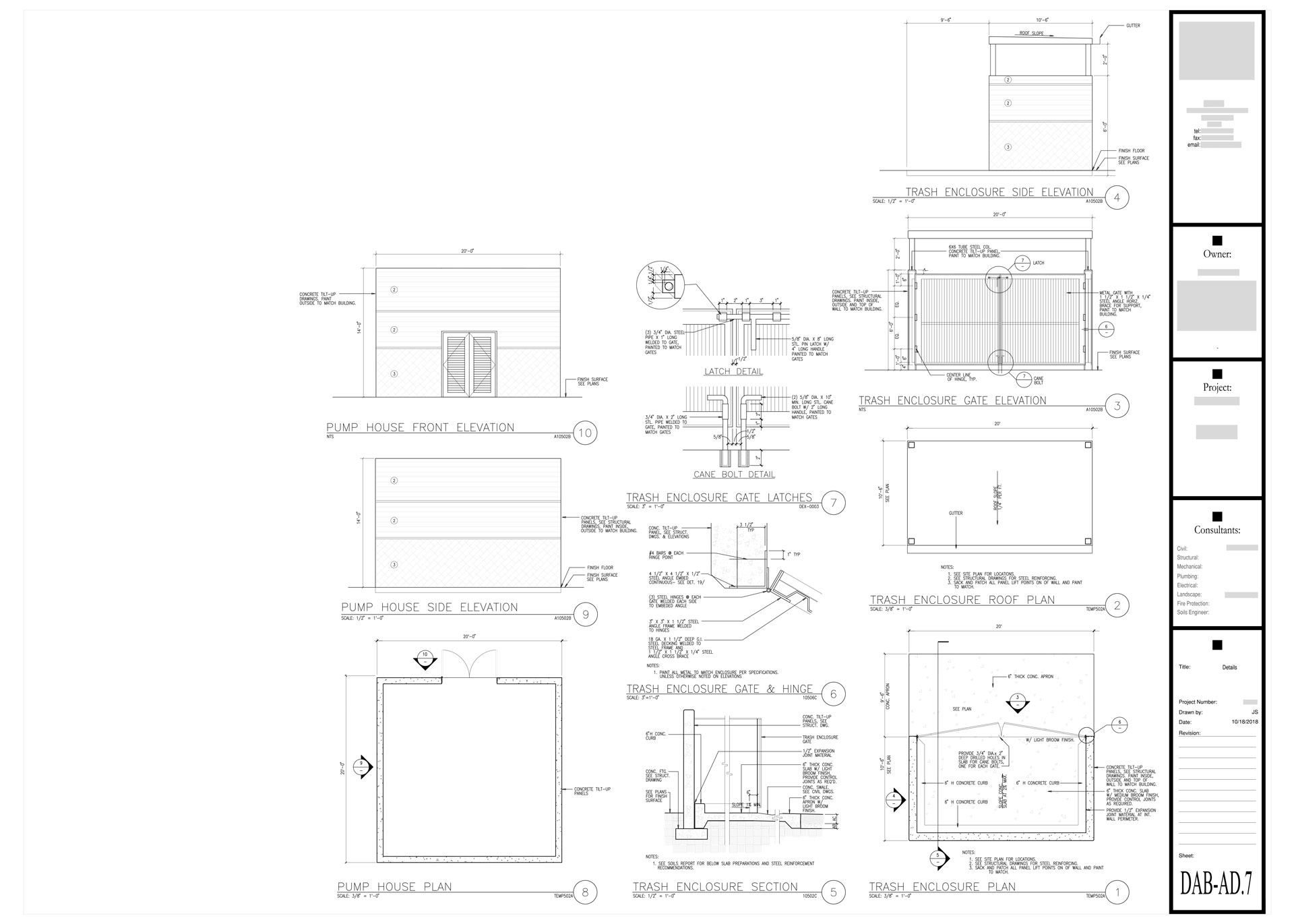
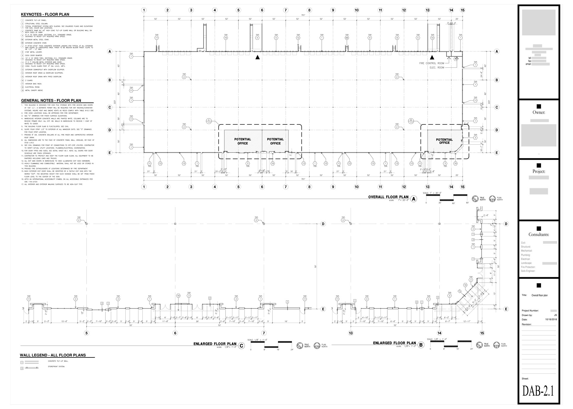
Planning Application Submittal.
PDF VIEW