LOADING
JAKE SEALINE
WORK
ABOUT
CONTACT
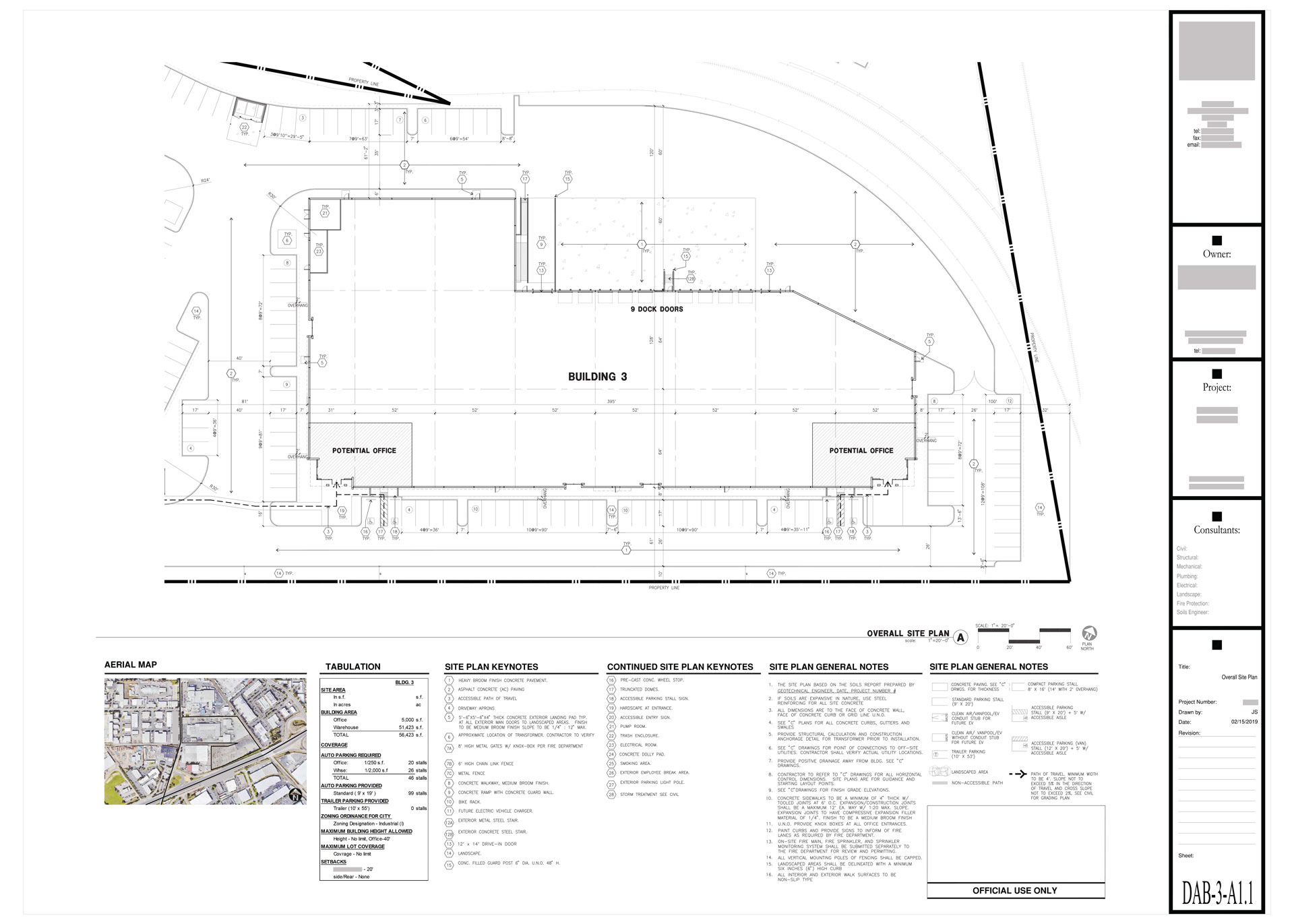
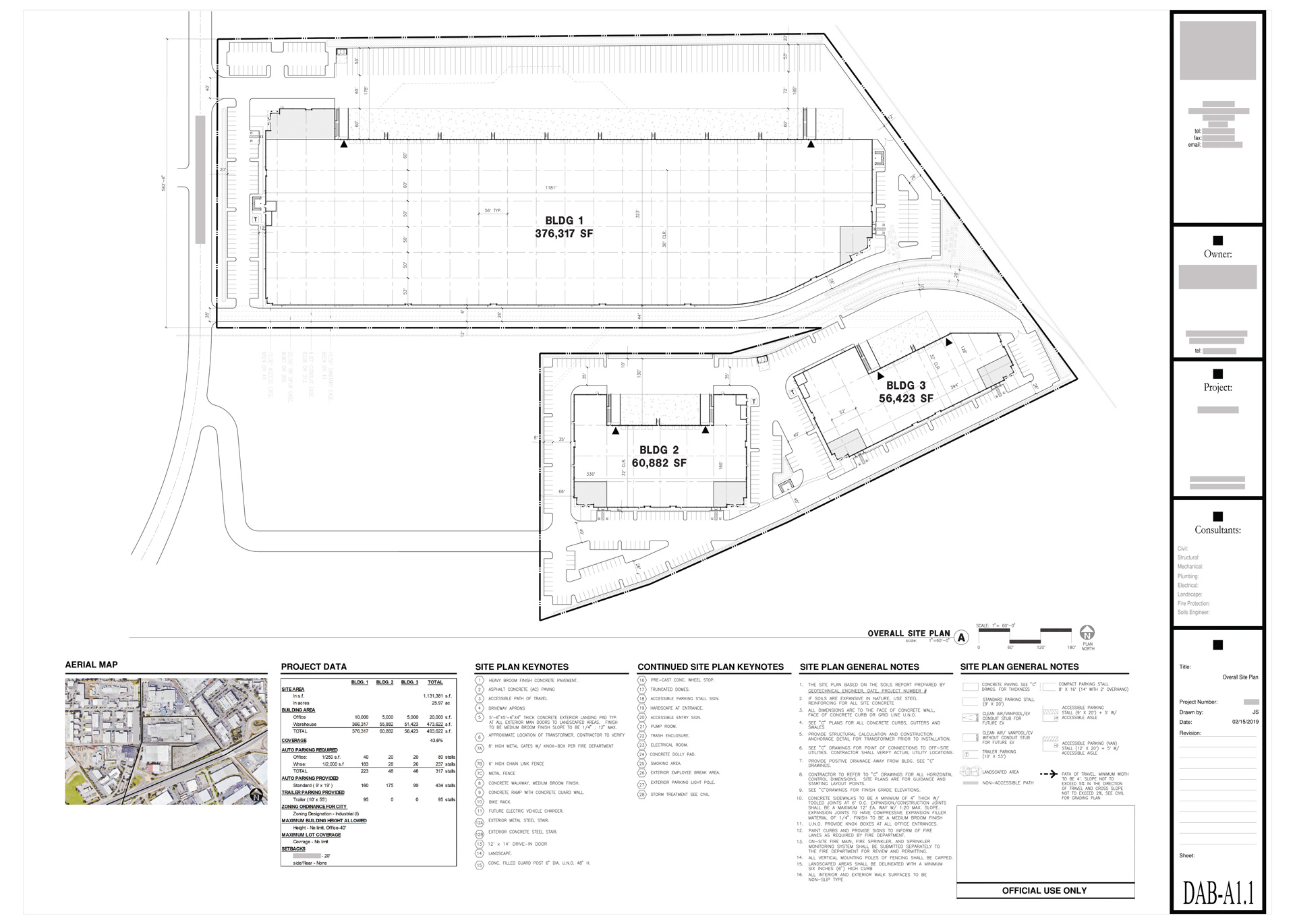
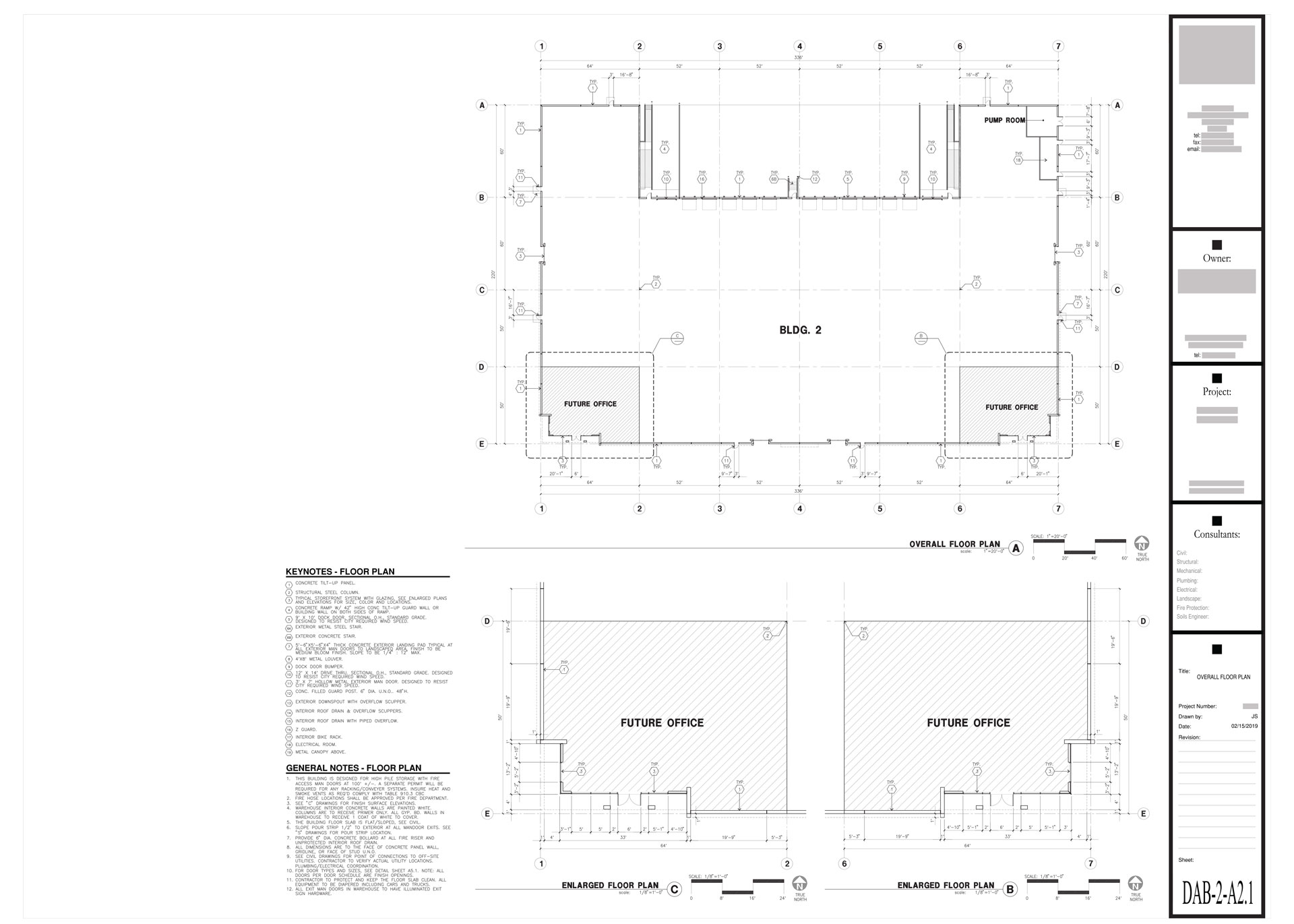
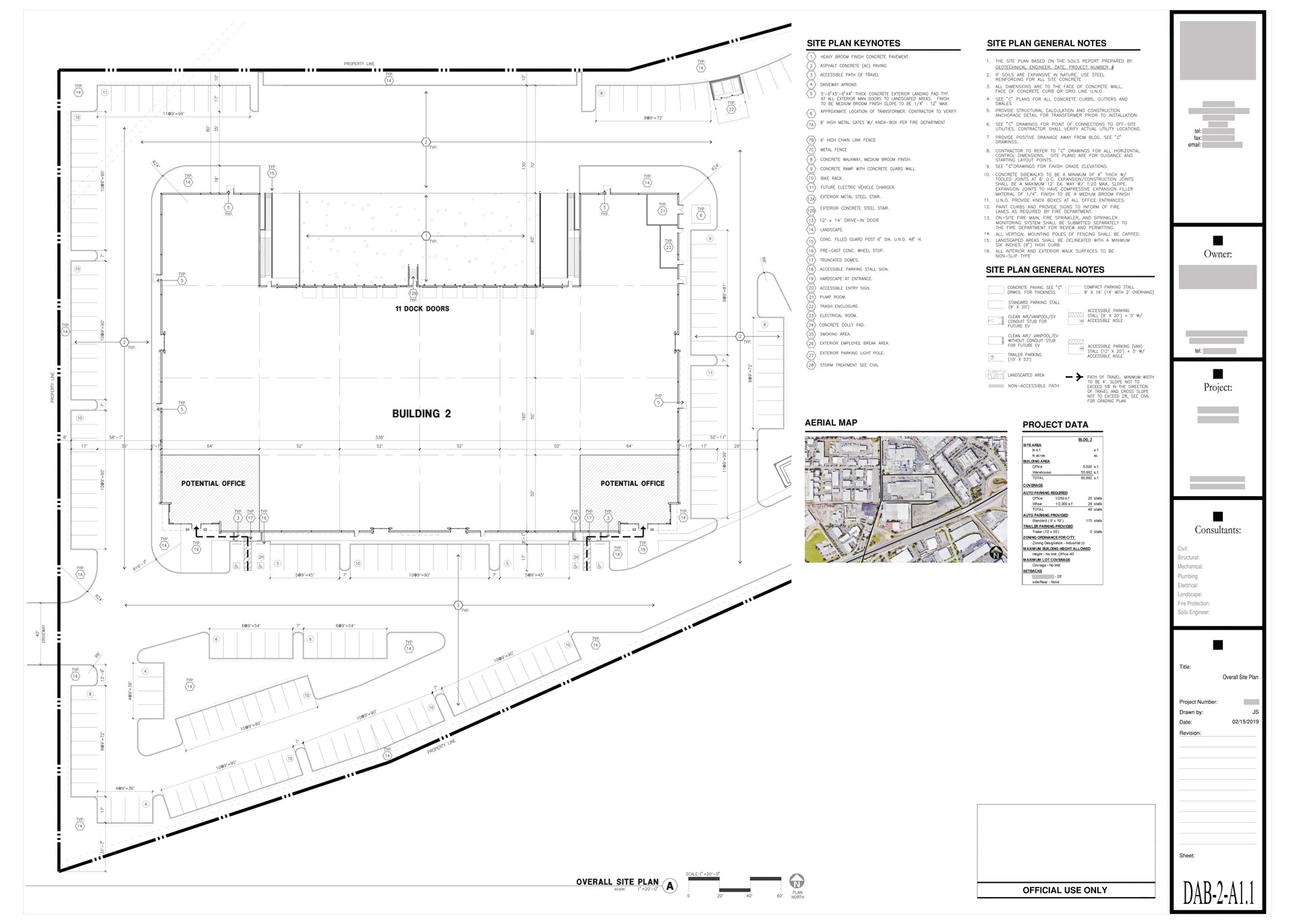
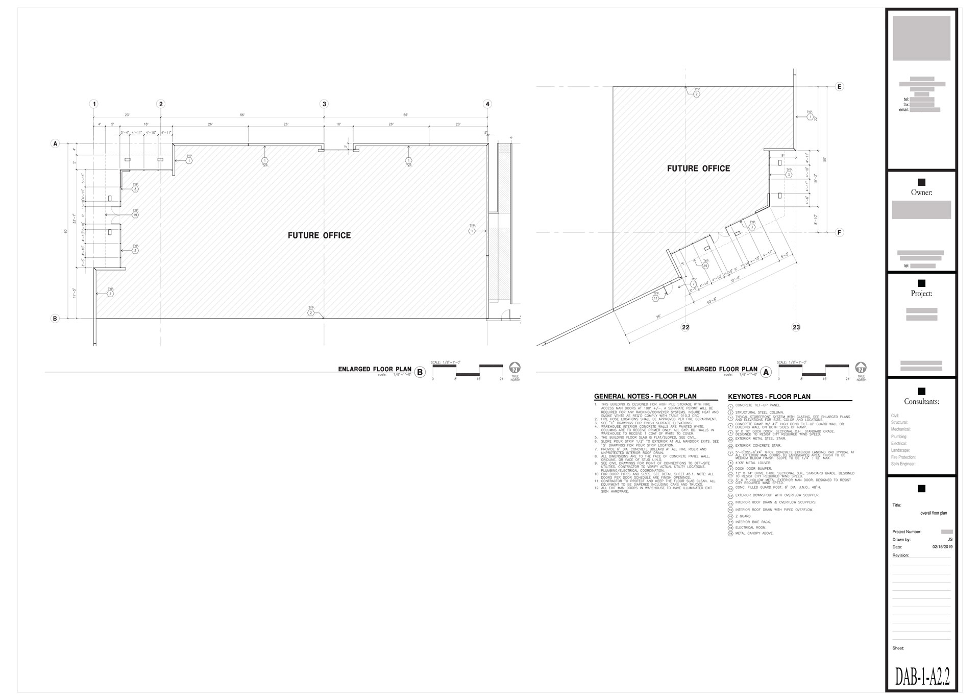
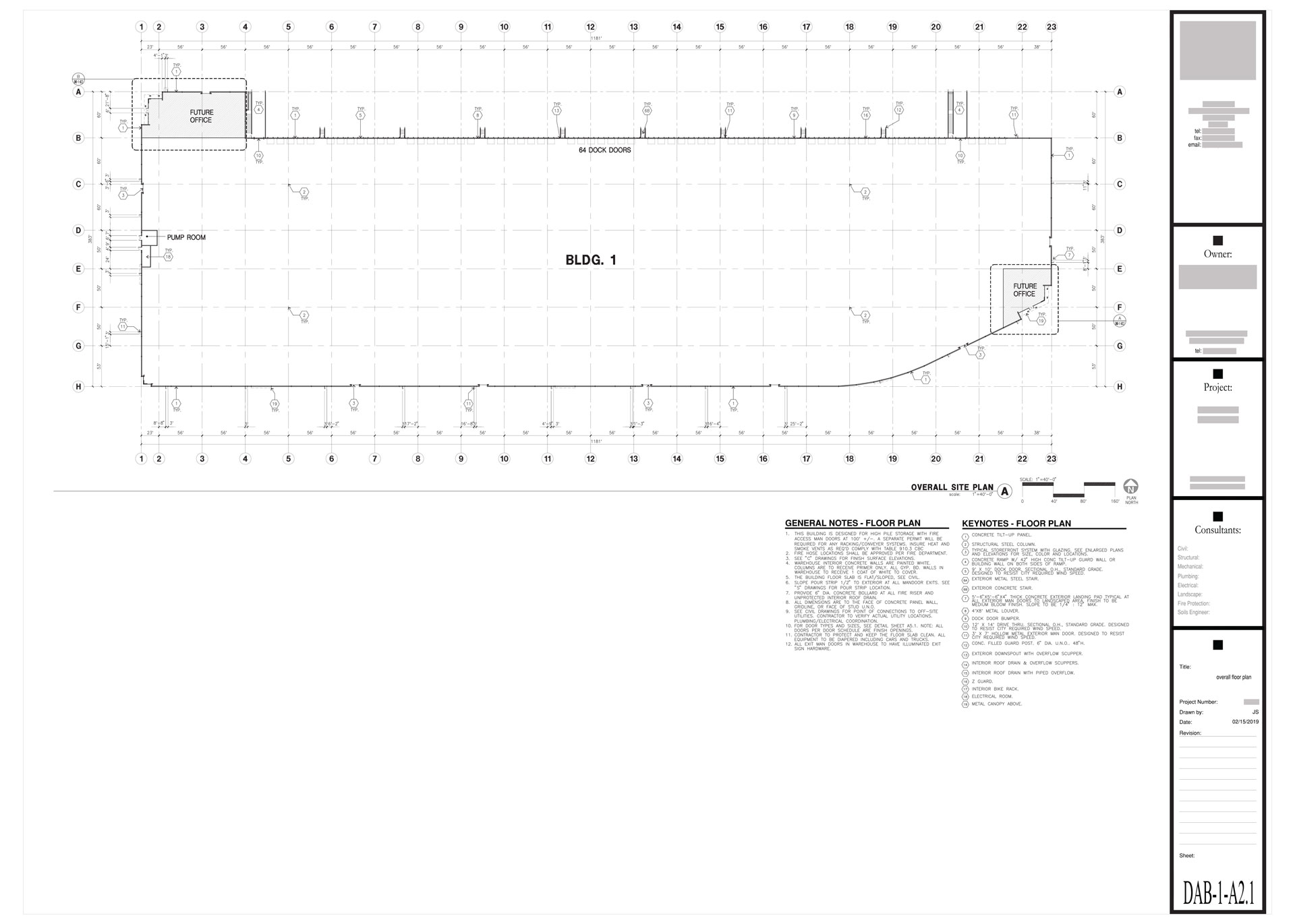
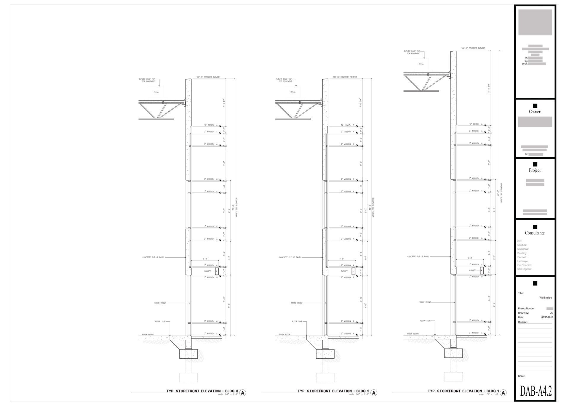
DRAFTING SAMPLE A
Planning Application Submittal.
PDF VIEW